![]()
Piso de lujo en Madrid con balcón y cinco suites en Calle Fuencarral
Piso de lujo en Madrid con balcón y cinco suites en Calle Fuencarral
SKU:
Elegancia, amplitud y carácter histórico en una finca clásica de Fuencarral.
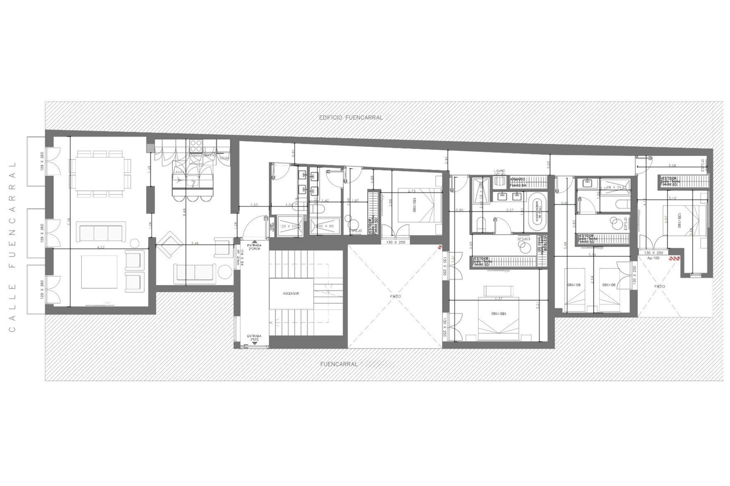
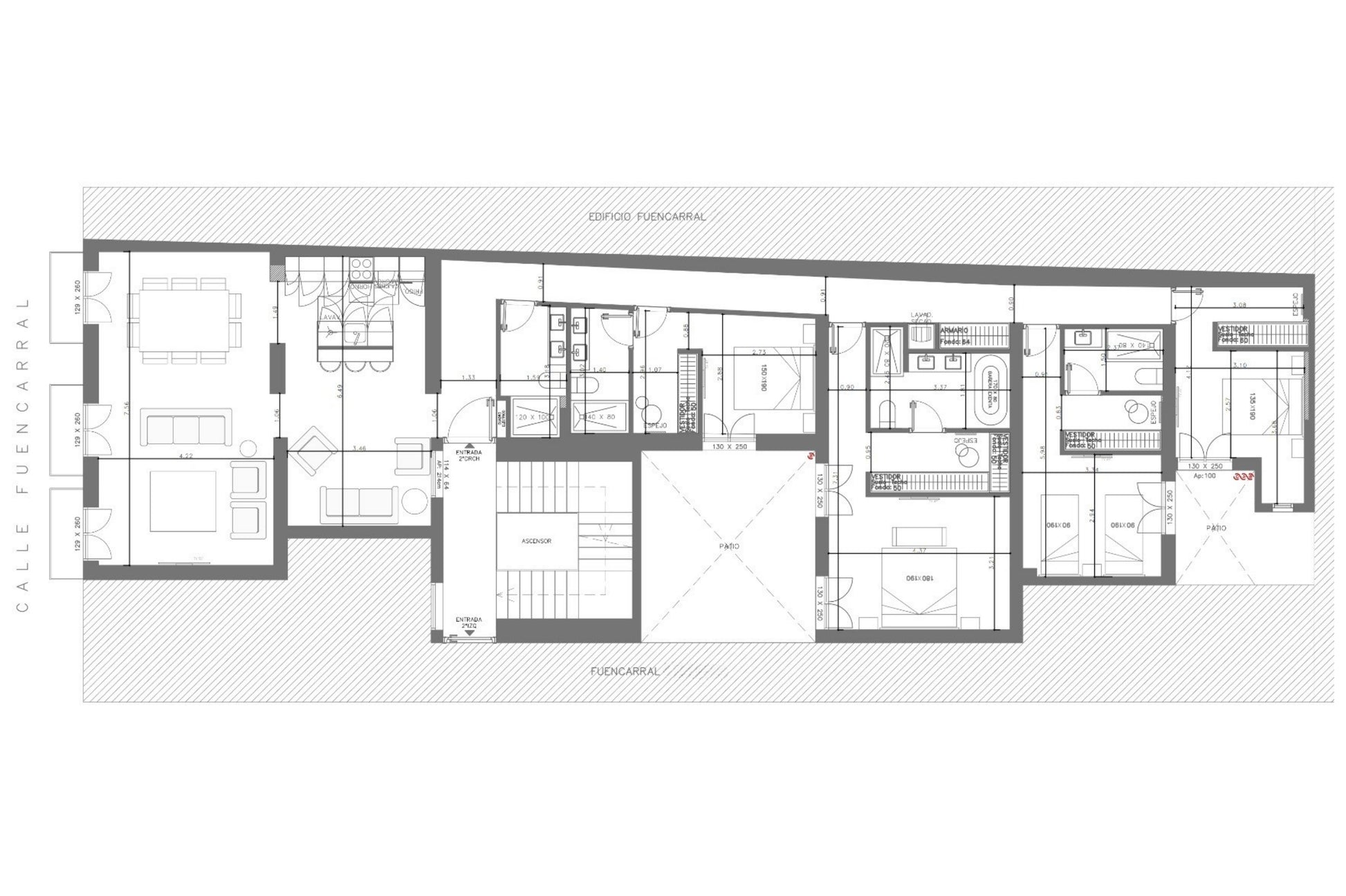
En una de las calles más emblemáticas del centro de Madrid, este piso de 193 m² combina el encanto arquitectónico tradicional con un interiorismo contemporáneo de líneas puras y materiales de alta calidad. Situado en la tercera planta de un edificio clásico con ascensor, la vivienda ofrece cinco dormitorios y cinco baños, distribuidos en espacios amplios y luminosos que conservan la esencia del entorno histórico. El salón–comedor, con acceso a un balcón exterior, conecta de forma fluida con la cocina equipada, creando un ambiente ideal para disfrutar y recibir. Dispone de calefacción individual por gas, sistema de climatización, trastero y un diseño interior completamente amueblado que equilibra confort y estilo.
Si deseas conocer el precio, las condiciones o concertar una visita privada, completa el formulario y te contactaremos personalmente.
- Superficie: 193 m² construidos / 218 m² catastrales
- Habitaciones: 5 dormitorios
- Baños: 5 baños completos
- Terraza / jardín / garaje: Balcón exterior
- Planta o tipo de vivienda: 3ª planta, piso exterior
- Estado: amueblado, excelente conservación, totalmente equipada
- Zona o barrio aproximado: Centro – Malasaña / Justicia
- Otros: Ascensor, calefacción por gas individual, climatización, trastero
Ubicado entre las zonas de Justicia y Malasaña, este piso ofrece un estilo de vida vibrante y cosmopolita, rodeado de boutiques, restaurantes de autor y espacios culturales. Su combinación de amplitud, luz y carácter lo convierte en una residencia excepcional en el corazón más auténtico de Madrid.


Similares
-
Piso de alto standing en Madrid con vistas panorámicas en la calle María de Molina
Precio habitual €5.709.000,00 EURPrecio habitualPrecio de oferta €5.709.000,00 EUR -
Edificio de lujo en Madrid con historia y elegancia en Calle Príncipe
Precio habitual €4.199.000,00 EURPrecio habitualPrecio de oferta €4.199.000,00 EUR -
Piso de lujo en Madrid con terraza y piscina en calle Leganitos
Precio habitual €3.300.000,00 EURPrecio habitualPrecio de oferta €3.300.000,00 EUR -
Ático de lujo en Madrid con terraza privada en Calle Castelló
Precio habitual €2.919.000,00 EURPrecio habitualPrecio de oferta €2.919.000,00 EUR -
Piso de lujo en Madrid con terraza privada en Calle General Diaz Porlier
Precio habitual €2.409.000,00 EURPrecio habitualPrecio de oferta €2.409.000,00 EUR -
Piso de lujo en Madrid con garaje y domótica en Calle Diego de León
Precio habitual €2.409.000,00 EURPrecio habitualPrecio de oferta €2.409.000,00 EUR -
Piso de lujo en Madrid con domótica y estilo contemporáneo en Calle Goya
Precio habitual €2.309.000,00 EURPrecio habitualPrecio de oferta €2.309.000,00 EUR -
Piso de lujo en Madrid con balcón y diseño contemporáneo en Calle Hermosilla
Precio habitual €2.279.000,00 EURPrecio habitualPrecio de oferta €2.279.000,00 EUR -
Piso de lujo en Madrid con garaje y trastero en Calle Conde de Peñalver
Precio habitual €2.279.000,00 EURPrecio habitualPrecio de oferta €2.279.000,00 EUR -
Piso de lujo en Madrid con diseño en Avenida Menéndez Pelayo
Precio habitual €2.139.000,00 EURPrecio habitualPrecio de oferta €2.139.000,00 EUR -
Precio ActualizadoPiso de lujo en Madrid con diseño contemporáneo en Calle Diego de León
Precio habitual €2.100.000,00 EURPrecio habitual€2.259.000,00 EURPrecio de oferta €2.100.000,00 EURPrecio Actualizado -
Piso de lujo en Madrid con balcones exteriores en Calle Conde de Peñalver
Precio habitual €2.099.000,00 EURPrecio habitualPrecio de oferta €2.099.000,00 EUR -
Piso de lujo en Madrid con balcón y diseño en Calle María de Molina
Precio habitual €2.089.000,00 EURPrecio habitualPrecio de oferta €2.089.000,00 EUR -
Piso de lujo en Madrid con terraza y domótica en calle Goya
Precio habitual €2.059.000,00 EURPrecio habitualPrecio de oferta €2.059.000,00 EUR -
Piso de lujo en Madrid con patio privado en Calle María de Molina
Precio habitual €2.049.000,00 EURPrecio habitualPrecio de oferta €2.049.000,00 EUR -
Piso de lujo en Madrid con estilo contemporáneo en Calle Padilla
Precio habitual €2.019.000,00 EURPrecio habitualPrecio de oferta €2.019.000,00 EUR -
Piso de lujo en Madrid con terraza privada en Calle Montesa
Precio habitual €2.009.000,00 EURPrecio habitualPrecio de oferta €2.009.000,00 EUR -
Piso de lujo en Madrid con terraza y domótica en Calle General Pardiñas
Precio habitual €2.009.000,00 EURPrecio habitualPrecio de oferta €2.009.000,00 EUR -
Piso de lujo en Madrid con amplios espacios y diseño moderno en Calle Padilla
Precio habitual €1.909.000,00 EURPrecio habitualPrecio de oferta €1.909.000,00 EUR -
Piso de lujo en Madrid con cinco suites y diseño contemporáneo en Calle Francisco Silvela
Precio habitual €1.889.000,00 EURPrecio habitualPrecio de oferta €1.889.000,00 EUR -
Piso de lujo en Madrid con garaje y diseño contemporáneo en Calle Ayala
Precio habitual €1.889.000,00 EURPrecio habitualPrecio de oferta €1.889.000,00 EUR -
Piso de lujo en Madrid con domótica y diseño actual en Calle Alcalá
Precio habitual €1.879.000,00 EURPrecio habitualPrecio de oferta €1.879.000,00 EUR -
Piso de lujo en Madrid con terraza y garaje en Calle Juan Bravo
Precio habitual €1.809.000,00 EURPrecio habitualPrecio de oferta €1.809.000,00 EUR -
Piso de lujo en Madrid con terraza y estilo contemporáneo en Calle Castelló
Precio habitual €1.779.000,00 EURPrecio habitualPrecio de oferta €1.779.000,00 EUR
Diseño y excelencia firmados por Arctempus
Cada vivienda ha sido concebida y transformada por Arctempus, uno de los estudios de arquitectura e interiorismo más prestigiosos de Madrid. Su sello se aprecia en cada detalle: distribuciones inteligentes, materiales nobles e iluminación estudiada que combinan elegancia clásica y modernidad.
Tu inversión en Madrid, con total tranquilidad
¿Las viviendas están disponibles para entrar a vivir?
Sí. Todas nuestras propiedades están completamente reformadas, equipadas y decoradas por el estudio Arctempus. Cuentan con mobiliario de diseño, electrodomésticos, cubertería, sábanas y todo lo necesario para disfrutar del lujo de Madrid desde el primer día.
¿En qué zonas de Madrid se encuentran las viviendas?
Trabajamos exclusivamente en las zonas más prestigiosas de la capital, como Recoletos, Salamanca, Goya, Lista, Chamberí o Justicia. Cada ubicación ha sido seleccionada por su entorno, seguridad, arquitectura y calidad de vida.
¿Puedo comprar una vivienda si resido fuera de España?
Por supuesto. House & Plus está especializada en acompañar a compradores internacionales. Nos encargamos de todos los trámites legales, fiscales y logísticos para que puedas invertir o mudarte a Madrid con total tranquilidad.
¿Ofrecen asesoramiento legal y financiero durante la compra?
Sí. Colaboramos con despachos expertos en inversión extranjera que gestionan la documentación, apertura de cuenta bancaria, hipoteca (si aplica) y firma notarial. Todo el proceso se desarrolla con máxima transparencia y seguridad jurídica.
¿El precio incluye mobiliario y decoración?
Sí. El precio publicado incluye todo el equipamiento y decoración tal como aparece en las imágenes. Nuestras viviendas son proyectos llave en mano, diseñados y entregados con un estándar hotelero de lujo.
¿Puedo visitar las viviendas antes de comprar?
Por supuesto. Organizamos visitas privadas y personalizadas, adaptadas a tu disponibilidad. Si viajas desde el extranjero, podemos recibirte en el aeropuerto y acompañarte durante toda tu estancia en Madrid.
¿Gestionan también el alquiler o mantenimiento de la vivienda?
Sí. Ofrecemos servicios de gestión postventa, incluyendo mantenimiento, limpieza, reformas menores e incluso administración del alquiler si deseas rentabilizar tu inversión.
¿Por qué elegir House & Plus?
Porque unimos selección exclusiva, acompañamiento personalizado y excelencia arquitectónica. En colaboración con Arctempus, ofrecemos viviendas de autor listas para vivir, con un servicio discreto, seguro y orientado a la satisfacción total del cliente.























